彈簧自閉式泄爆閥結構形式是怎樣的?
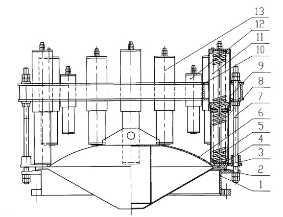
2022-07-05 關注次數:彈簧自閉式泄爆閥通常安裝在鋼廠轉爐干式除塵器的入口和出口。彈簧自閉式泄爆閥通常在包括閥體的結構中采用三級防爆閥。閥體配有閥盤。閥盤使用錐形表面(用于平衡爆炸壓力)。具有圓形邊緣,在環表面和閥體之間安裝一個硅橡膠密封圈,并在閥體和閥體裂縫上安裝一個接觸開關,以檢測閥是否打開。
彈簧自閉式泄爆閥支架通過螺母,多個一級螺旋彈簧缸,二級彈簧缸以及多個一級螺旋彈簧缸,二級彈簧固定在閥體上。

在三級彈簧缸的情況下,一級彈簧缸的底表面與閥盤的環形表面直接接觸,并且次級彈簧缸與三級彈簧缸之間的距離為在閥閥的環形表面上的L1和L2分別大于L2、兩級和兩級彈簧缸由一個外套管,一個內套管和一個圓柱形螺旋彈簧組成。內套筒可以滑動。外套。圓柱形螺旋彈簧連接在外套管和內套管之間。彈簧),外套管固定在支架上。
在閥瓣端部的圓形平面外側還固定有多個導向套,導向套的一端套在螺桿上,而兩個則是縫隙配合的。
自閉式泄爆閥相關文章
- 自閉式泄爆閥:保護工業安全的創新技術
自閉式泄爆閥是工業安全領域的創新技術,能在檢測到異常壓力時自動開啟泄壓,隨后自行關閉,無需人工干預,…
- 自閉式泄爆閥:瞬間應變,壓力無憂
在眾多工業生產與儲存設施中,穩定防護措施至關重要,其中自閉式泄爆閥作為一種主動防御設備,承擔著保護系…
- 自閉泄爆閥,瞬間壓力守護者
自閉式泄爆閥,作為壓力容器和管道系統中的關鍵安全組件,被譽為“瞬間壓力守護者”。在工業生產過程中,面…
- 如何根據工藝流程、介質特性和環境條件來選擇合適的自閉式泄爆閥類型?
根據工藝流程中可能出現的最大壓力和流量需求,選擇合適的自閉式泄爆閥類型和規格。確保自閉式泄爆閥的承壓…
- 自閉式泄爆閥如何在壓力超載情況下快速釋放壓力?
在壓力超載情況下,自閉式泄爆閥通過以上設計和工作原理的配合,能夠快速、有效地釋放壓力,保護系統的安全…
- 自閉式泄爆閥的設計與發展趨勢
從設計角度來看,自閉式泄爆閥的設計需考慮多種因素,包括壓力范圍、介質性質、流量要求等。針對不同的工業…
- 自閉式泄爆閥的工作原理與應用
自閉式泄爆閥采用先進的設計原理,通過感應管或傳感器監測管道系統內的壓力變化。當管道系統的壓力超過預設…
- 自閉式泄爆閥的工作原理與維護保養
?自閉式泄爆閥是一種重要的安全設備,在工業生產中起到預防和控制容器或管道的過壓和過真空現象的作用。為…
- 自閉式泄爆閥:保護設備和人員安全的重要組件
?自閉式泄爆閥是一種常見的安全閥裝置,被廣泛應用于各種工業領域,以保護設備和人員的安全。本文將重點介…
- 自閉式泄爆閥的應用及優點
?自閉式泄爆閥是一種常見的安全設備,廣泛應用于各行業的壓力容器和管道系統中。它能夠在系統壓力過高時迅…
